Home
News
Sport
What’s On
Send your story
Public Notices
Subscription
More
sponsored
Patchy rain for today, sunny tomorrow
Save money and get deals on name brand groceries with Discount Dragon
Half-price tickets this December at Petersfield Museum and Art Gallery
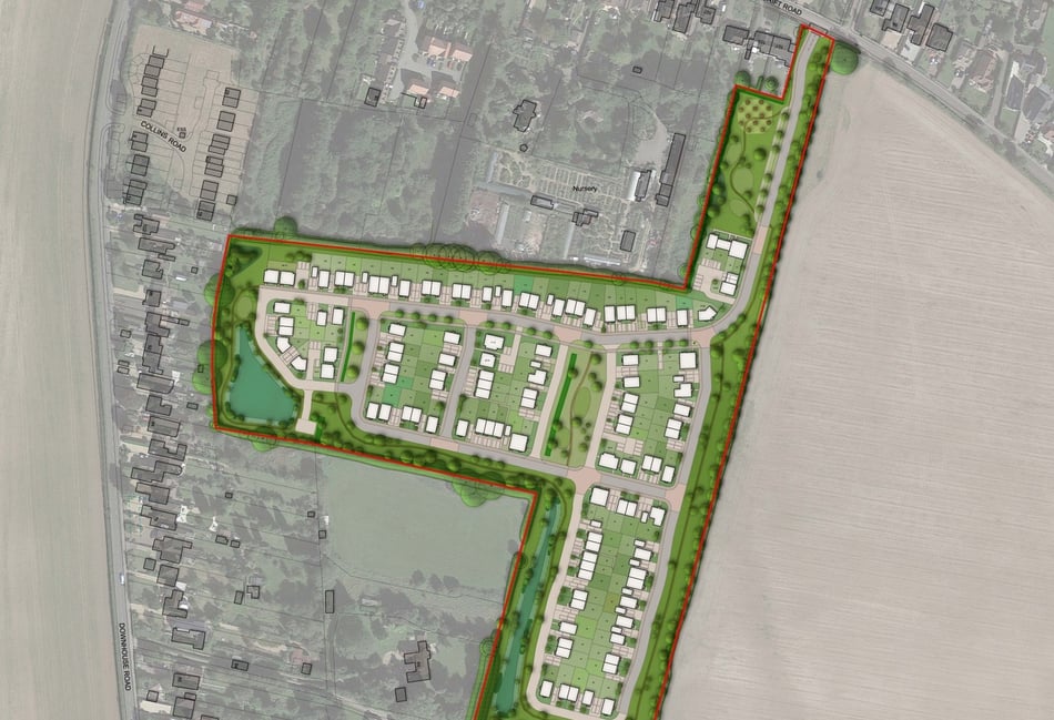
Surrey Hills Board condemns controversial housing ruling
Flu hospital cases double in South East as NHS urges vaccinations
Hampshire Hospitals Trust: how long patients waited for NHS treatment in October
Southern Health: how long patients waited for NHS treatment in October
Portsmouth Hospitals Trust: how long patients waited for NHS treatment in October
Education
Bohunt School soars to top 20 in UK national league tables
Entertainment
Test yourself with our daily online puzzles
Patriotism or provocation? Flag row erupts in town
Less than three-quarters of A&E arrivals at Portsmouth Hospitals seen within four hours
Hockey
Churcher's College Junior School win bronze at under-11 hockey event
Eight Farnham players attend England Academy session
Football
Alton slip to defeat against Horley Town
Bourne's Paul Hudson-Oldnall shines for England at Home Internationals
Athletics
Alton Runners shine at Victory five-mile road race
WATCH: Aldershot Town manager John Coleman praises side's character
Just two-thirds of A&E arrivals at Hampshire Hospitals Trust seen within four hours
Nearly all minor injury unit arrivals at Hampshire and Isle of Wight Trust seen within four hours
Community news
Fernhurst scouts deliver a first-class Christmas
Woman’s fight for justice 53 years after IRA blast
More than 100 people in East Hampshire without a home this Christmas
Drizzly conditions and patchy rain likely over the next two days
Business
My Working Week: It takes time to build trust
East Hampshire ‘not a development dumping ground’, warns leader
Hampshire pupils with special needs lagging behind in Year 4 maths test
Homeless in Haslemere: A man's first-hand story of life on the streets
Join Petersfield Young Farmers for charity carols at Froxfield pub
Christmas gift appeal launched as council urges residents to donate
Owned or licensed to Tindle Newspapers Ltd. | Independent Family-Owned Newspapers | Copyright & Trade Mark Notice & 2013 - 2025